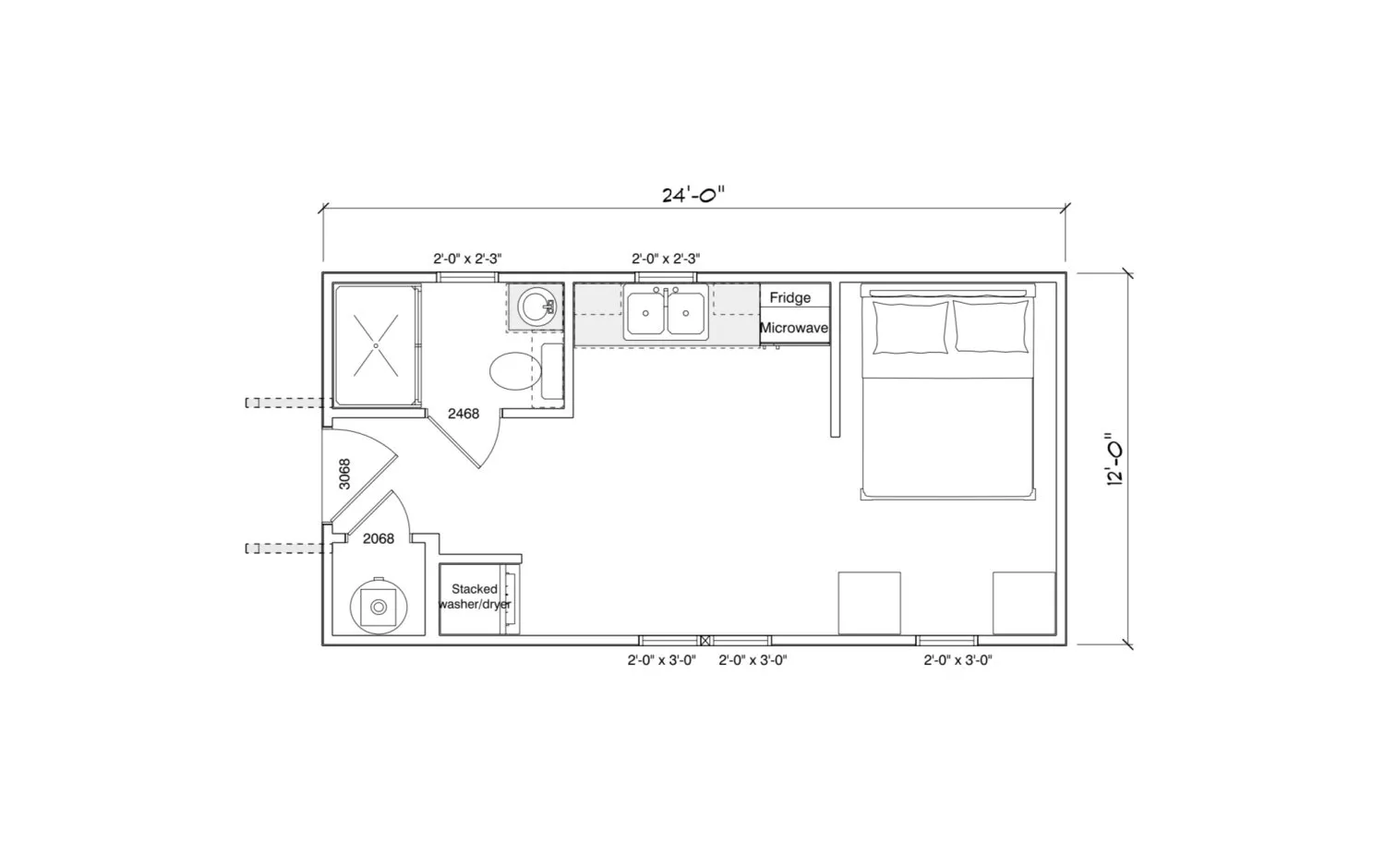
The HideAway 12x24

This unit was created as a recreational getaway. Be it by the pond at a vacation property, the base camp for deer hunting, or simply an extra room for guests.

Exterior:

  • 2x4 walls with 16” o/c wall studs
  • 2x6 floor joists 16” o/c
  • 2x6 trusses 24” o/c
  • LP Smart Siding exterior
  • Shingle roof
  • Cedar fascia / trim
  • Insulated doors and windows

Interior:

  • R-15 closed cell spray foam insulation throughout
  • 1/2” birch plywood wall covering
  • White plywood cabinets with soft close hinges
  • Black hardware
  • Waterproof flooring
  • White trim
  • Pine ceiling
  • Pine accent wall
  • Wilsonart countertops
  • Stainless sink and faucet
  • Solid surface vanity top with black faucet
  • 30”x60” shower
  • Toilet
  • 30 gallon water heater
  • 100 amp panel
  • 15 amp receptacles
  • GFCI receptacles
  • Flush mount ceiling lights
  • Fully plumbed and wired

Note: Appliances not included, except water heater.

Pricing: Call for pricing.

Cookie settings