Emerald Villa 12x32

Property Overview

This dwelling was created with the investors in mind. With its large Anderson windows, quality doors, durable exterior, solid cabinetry, 1/2” furniture grade plywood wall coverings, and luxury vinyl floors, it not only has a great appearance, but is built for longevity and structural soundness for the long haul. Featured closed cell spray foam insulation will assist in maintaining heating/cooling costs.

This unit features:

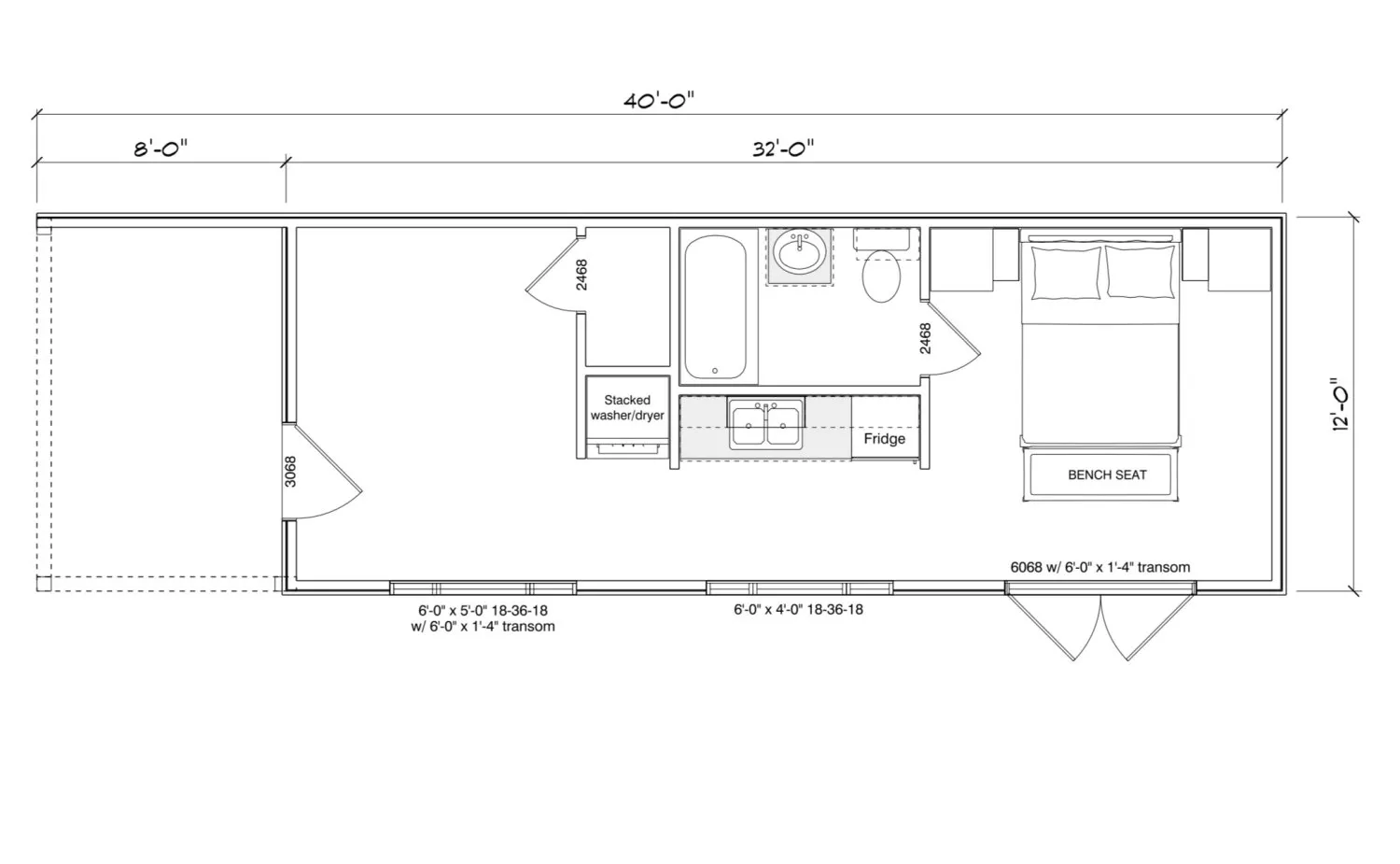
  • 12x32 + 8’x12’ porch
  • 1 bedroom w/ living room conversion - sleeps 4
  • 1 bath

Exterior:

  • 2x8 floor joist 16” o/c
  • 2x4 wall studs 16” o/c
  • 2x6 rafters 16” o/c
  • 3/4 inch tongue grooved sub floor
  • 5/8 roof plywood
  • Metal roof
  • Aluminum soffit/fascia
  • Anderson Windows
  • Locally made doors
  • LP board batten siding
  • Doug fir timber framing
  • Pine accent siding

Interior:

  • 1/2” birch plywood walls
  • Luxury vinyl floors
  • Plywood cabinetry w/ soft close doors/drawers
  • Sturdy floating shelves

Utilities & Electrical:

  • 30 amp Washer/dryer hookup
  • 40 gallon water heater
  • GFCI receptacles
  • 15 amp receptacles
  • Flush mount ceiling lights
  • Bath exhaust fan
  • Pioneer mini split heating/cooling 18,000 BTU
  • 100 amp panel

Note: Appliances not included, except water heater.

Pricing: Call for pricing.

Cookie settings